Exterior Front Features & Finishes:
Fascia – Black aluminum.
Windows – Harvey Classic, black.
Front Door – Fiberglass Craftsman with top lite, black.
Parking – Grass pavers (GrassPave2).
Note: All finishes are subject to change based on availability.
Bath – Designer Selected Finishes:
Lighting – Franport Lighting, 2-light Oslo Collection (satin nickel).
Mirror – Plate glass, no trim.
Faucets – Moen Traditional Series (satin nickel) for sink and shower.
Walls – Alabaster White; shower walls in Daltile Desert Gray ceramic tile.
Counter & Sink – White-on-white cultured marble with white bowl.
Vanity – Merillat Marlin base cabinet, Nightfall color.
Note: All finishes are subject to change based on availability.
Exterior Finishes & Features:
Roof – CertainTeed Landmark Pro 30-Year asphalt shingles (Charcoal Black).
Siding – CertainTeed Double 4 vinyl (Colonial White).
Windows & Doors – Black trim; 9' sliding deck door; basement windows in white (flat).
Deck & Railings:
Deck railing with black aluminum balusters and cedar handrail; privacy panel with natural cedar slats.
Note: All finishes are subject to change based on availability.
Kitchen Finishes & Specs
Kitchen
Plumbing & Counters – Moen Arbor faucet (satin nickel), undermount stainless sink, Daltile Chipped Ice quartz counters with 4" backsplash.
Appliances & Ventilation – Stainless steel appliances, exterior-vented hood.
Cabinetry – Merillat Marlin cabinets, Bluff color, Shaker crown.
Structural & Surfaces – Alabaster White walls, Cali Vinyl Select “Blonde Ale” flooring.Staircase Details:
Red oak stairs and railing with clear poly finish; black aluminum balusters.Note: All finishes are subject to change based on availability.
Bedroom – Designer Selected Finishes:
Walls – Alabaster White with white 3.5" flat window/door trim.
Baseboards – White 5.5" flat.
Floors – Cali Vinyl Select Collection “Blonde Ale.”
Interior Doors – Two-panel smooth; closet doors hollow core, room doors solid core.
Note: All finishes are subject to change based on availability.
Note: All finishes are subject to change based on availability.
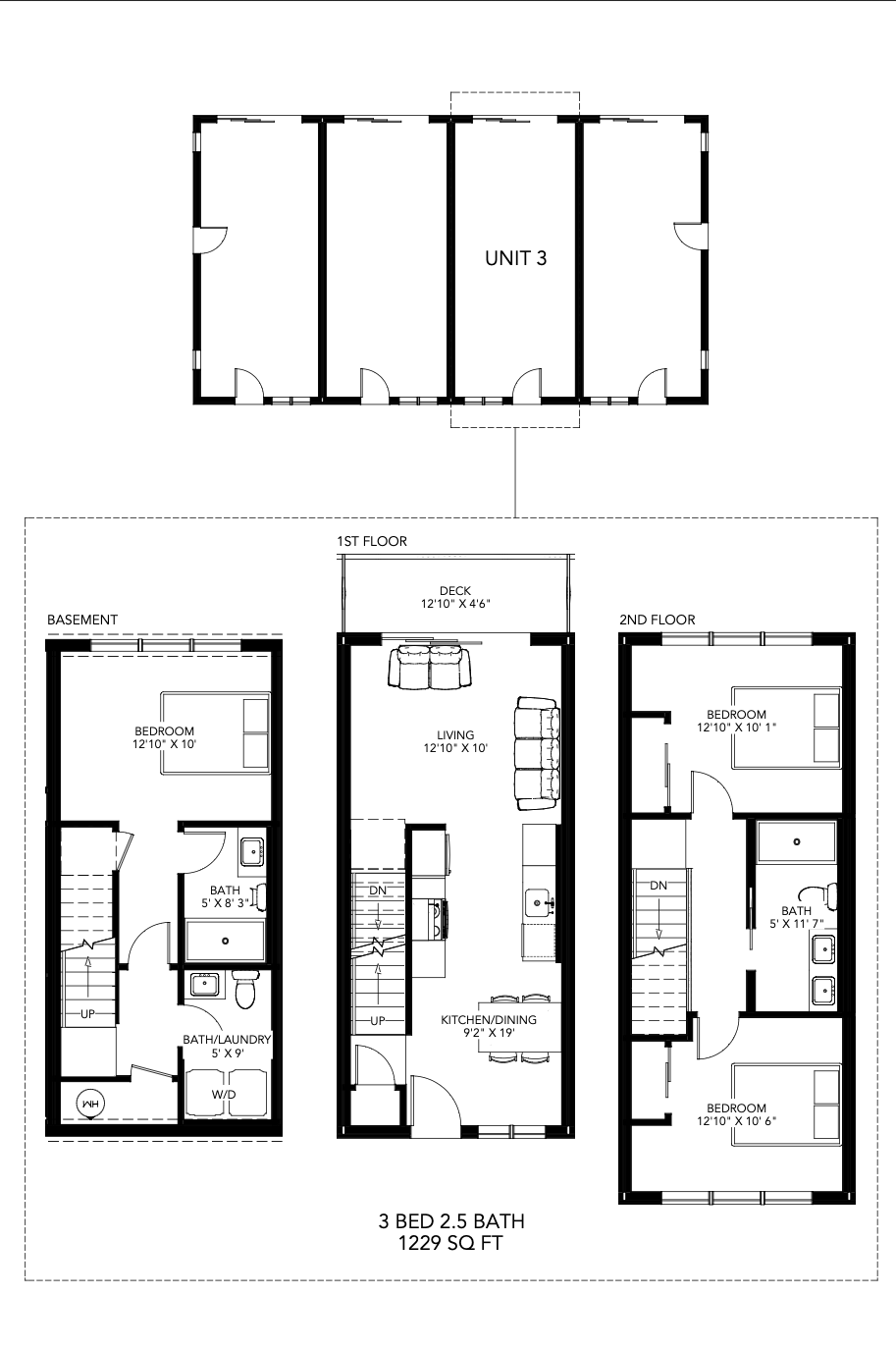
Floor Plans
First Floor
Third Floor
Second Floor
Fourth Floor

